Praxisräume

Gestalten Sie Ihr Arbeitsleben nach Ihren Vorstellungen. Im Gesundheitsbahnhof gestalten Sie Ihre Arbeit nach Ihren eigenen Wünschen! Ob niedergelassener Arzt in eigener Praxis oder angestellter Arzt in MVZ, in Voll- oder Teilzeit, mit so viel oder so wenig Unterstützung wie Sie möchten – wir bieten flexible Möglichkeiten!

Neue und moderne Praxisräume
Die Praxisräume und Wartezimmer sind großzügig angelegt und können nach Ihren Vorstellungen gestaltet werden. Wir bieten Ihnen dabei die neuste IT-Struktur, die einen reibungslosen Praxisablauf ermöglicht und auch für telemedizinische Angebote nutzbar ist.

Rundum-Service-Leistungen
Sie mieten Räume und passen diese ganz an Ihre Bedarfe an. So erhalten Sie maximale Flexibilität auch für Unvorhergesehenes.

Gesundes Arbeitsumfeld für Mitarbeiter Gehen Sie als Arztpraxis und Dienstleister im Gesundheitsbereich innovativ voran und schaffen Sie ein modernes, gesundes Arbeitsumfeld für Ihre Mitarbeitenden! Auf Wunsch bieten wir betriebliches Gesundheitsmanagement an. Werden Sie zu einem attraktiven Arbeitgeber und punkten Sie bei Ihren Mitarbeitern.

Flexible Flächen
Ab 20 m² können Sie Gewerbeeinheiten mieten, ganz nach Ihren eigenen Bedürfnissen. Die Flächen sind teilbar und können individuell gestaltet werden. Die Gesamtfläche des Grundstücks beträgt 1.730,54 m²

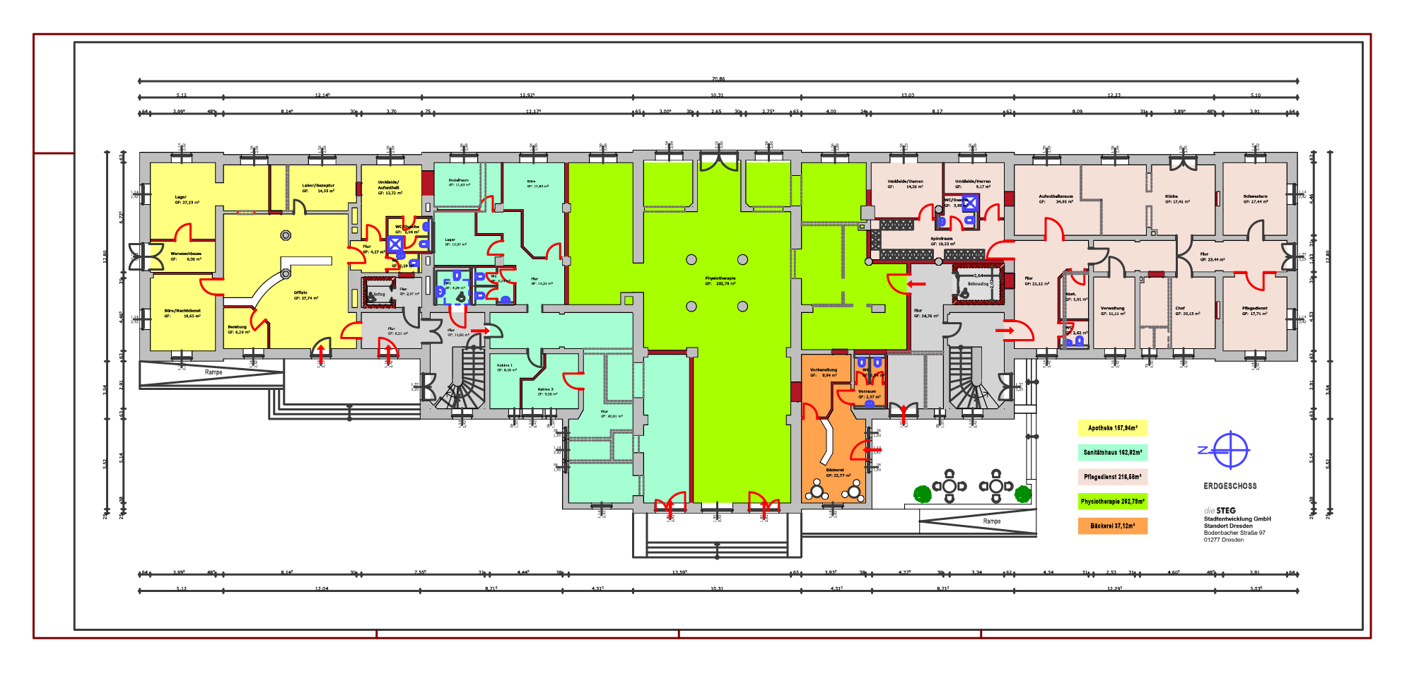
Grundriss Erdgeschoss

Wohnräume

Wohnen im historischen Bahnhofsgebäude. Neben der Anmietung von Praxisräumen bietet das Bahnhofsgebäude im Obergeschoss ausreichend Platz für individuell gestaltete Wohnräume. Das Wohnen in einem historisch restaurierten Gebäude bietet ein unvergleichbares Lebensgefühl. Einzigartige Grundrisse in einem Gebäude voller Geschichte und Charme runden Ihr ganz persönliches Wohnerlebnis ab. Kontaktieren Sie uns gern, wir bieten Ihnen zusätzliche Informationen sowie Besichtigungstermine an.

Beispielhafte Darstellung Wohnraum